タニコーのステンレスフロアシステムで、衛生的な排水設備をご提案します。
SUS304のステンレス板で形成されているので、耐用年数が長く、衛生的で耐久性に優れています。
食品の残渣・汚物が付着しにくく、清掃し易いR付構造を採用しました。
衛生的なため、食品工場・薬品工場・学校給食・病院などの各種施設に適しています。
お客様の用途に合わせた、自由なレイアウトが可能です。
※【ポルカプレート®】は日本冶金工業㈱の登録商標です。
※【ポルカプレート®】は日本冶金工業㈱の登録商標です。

ポルカプレート®、排水桝施工例
チェッカープレートは、ホウキで掃いた場合、チェッカー模様の裾の部分にゴミが残ってしまいます。ポルカプレート®は、凸部分が丸い形状をしているため、ほとんどゴミが残りません。同様に水はけも良く、排水性・乾燥性に優れているので滑りにくい床材です。




※幅木、腰壁、桝との仕舞もご相談ください。※材料・工事共に承ります。
写真の赤い部分は、安全靴でポルカプレート®とチェッカープレートを踏んだ時の接地状態です。ポルカプレート®は接地面積が大きいため、床材として使用した場合、足にかかる負担を大幅に軽減し、足裏の痛みもありません。

ステンレス側溝取付
スラブコンクリート打設(建築工事)後、
ステンレス側溝を取り付けます。
側溝の取付・接続は溶接にて行います。

根太取付
根太(床板を固定するための下地材)を
取り付けます。床板の高さと勾配は、
この根太で調整します。

押さえコンクリート打設
(建築工事)
コンクリート養生期間終了後、ポルカプレート®敷設を行います。

ポルカプレート®敷き込み
根太に合わせて、ポルカプレート®を敷き込みます。

床板溶接
床板を溶接で固定し、接続します。原則として、ポルカプレート®.SUS巾木は全溶接します。

溶接痕仕上げ
溶接痕の仕上げ作業を行い、ポルカプレート®敷設工事は完成です。

完成写真
化学薬品工場(ポルカ架台)
食品工場(ポルカ架台・階段)
製薬工場(SUS304平板)
お客様の用途に合わせた自由なレイアウトが可能です。
主に精密機器工場・化粧品工場・食品工場・化学薬品工場・製薬工場に適しており、架台や階段としての活用も可能です。
耐食性にも優れた、SUS304製グレーチング蓋、ピット蓋等各種取り揃えております。蓋のみのご注文は、側溝に合わせ、SS400(溶融亜鉛メッキ品)、鋳鉄製、FRP製も取り扱っております。

粗ゴミを取り除きます。

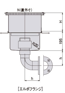
臭気を完全にシャットアウトします。清掃時にトラップ管を外す事により、排水が可能なため、清掃がし易くなっています。当社技術力により、排水管の着脱が大変スムーズに行えます。トラップ管を押し込む必要はなく、置くだけで止水、持ち上げるだけで排水出来ます。
槽内にR加工を施す事により、清掃し易い形状となり、残渣を残さず清掃出来ます。当社技術力により、本体と蓋受枠が一体となっているので隙間がなく、より衛生的な構造となっています。

コーナーにR加工を施し、清掃時はトラップの着脱により止水・排水できる構造。
各製品の仕様は現場に合わせて変更可能です。

| 型式 | 寸法(mm) | 排水口径 | 蓋寸法(mm) | ||
|---|---|---|---|---|---|
| L | M | h | |||
| TC-HA300S(L) | □300 | □424 | □150 | □80A | □380 |
| TC-HA350S(L) | □350 | □474 | □150 | □80A | □430 |
| TC-HA400S(L) | □400 | □524 | □150 | □80A | □480 |
| TC-HA450S(L) | □450 | □574 | □150 | □80A | □530 |
| TC-HA600S(L) | □600 | □724 | □175 | □100A | □680 |

| 型式 | 寸法(mm) | 排水口径 | ||
|---|---|---|---|---|
| L | M | h | ||
| TC-HZ300S(L) | □300 | □500 | □150 | □80A |
| TC-HZ350S(L) | □350 | □550 | □150 | □80A |
| TC-HZ400S(L) | □400 | □600 | □150 | □80A |
| TC-HZ450S(L) | □450 | □650 | □150 | □80A |
| TC-HZ600S(L) | □600 | □800 | □175 | □100A |

| 型式 | 寸法(mm) | 排水口径 | 蓋寸法(mm) | ||
|---|---|---|---|---|---|
| L | M | h | |||
| TC-HB300S(L) | □300 | □424 | □150 | □80A | □380 |
| TC-HB350S(L) | □350 | □474 | □150 | □80A | □430 |
| TC-HB400S(L) | □400 | □524 | □150 | □80A | □480 |
| TC-HB450S(L) | □450 | □574 | □150 | □80A | □530 |
| TC-HB600S(L) | □600 | □724 | □175 | □100A | □680 |

| 型式 | 寸法(mm) | 排水口径 | 蓋寸法(mm) | ||
|---|---|---|---|---|---|
| L | M | h | |||
| TC-HY300S(L) | □300 | □500 | □150 | □80A | □380 |
| TC-HY350S(L) | □350 | □550 | □150 | □80A | □430 |
| TC-HY400S(L) | □400 | □600 | □150 | □80A | □480 |
| TC-HY450S(L) | □450 | □650 | □150 | □80A | □530 |
| TC-HY600S(L) | □600 | □800 | □175 | □100A | □680 |
各製品の仕様は現場に合わせて変更可能です。
厨房や工場機械の洗浄など毎日洗浄し、排水量の多い環境に適しています。排水桝との接続は溶接一体式、現場溶接式共に可能です。蓋は、グレーチング、ピット蓋の対応をしております。当社技術力により、強度のある本体目地部一体加工を実現し、台車等の通過の際の心配はありません。

給食センター等のドライシステムなど、水をあまり使わない環境に適しています。溝幅が20mmなので、殆どの台車のキャスターの通過時に脱輪することはありません。当社技術力により、強度のある本体目地部一体加工を実現し、台車等の通過の際の心配はありません。本体と目地部が一体のため、溶接による継ぎ目がなく、より衛生的です。
D型(ドライ)側溝専用ブラシ
内面研磨(#400)・R加工・勾配により、清掃し易く衛生的です。
各製品の仕様は現場に合わせて変更可能です。

| 型式 | 寸法(mm) | 排水口径 | 蓋寸法(mm) | ||
|---|---|---|---|---|---|
| L | M | h | |||
| TC-HC300S(L)/W型側溝 | □300 | □424 | □150 | □80A | □380 |
| TC-HC350S(L)/W型側溝 | □350 | □474 | □150 | □80A | □430 |
| TC-HC400S(L)/W型側溝 | □400 | □524 | □150 | □80A | □480 |
| TC-HC450S(L)/W型側溝 | □450 | □574 | □150 | □80A | □530 |
| TC-HC600S(L)/W型側溝 | □600 | □724 | □175 | □100A | □680 |

| 型式 | 寸法(mm) | 排水口径 | 蓋寸法(mm) | |||
|---|---|---|---|---|---|---|
| L | M | m | h | |||
| TC-HX300S(L)/W型側溝 | □300 | □424 | □500 | □150 | □80A | □380 |
| TC-HX350S(L)/W型側溝 | □350 | □474 | □550 | □150 | □80A | □430 |
| TC-HX400S(L)/W型側溝 | □400 | □524 | □600 | □150 | □80A | □480 |
| TC-HX450S(L)/W型側溝 | □450 | □574 | □650 | □150 | □80A | □530 |
| TC-HX600S(L)/W型側溝 | □600 | □724 | □800 | □175 | □100A | □680 |

| 型式 | 寸法(mm) | 排水口径 | 蓋寸法(mm) | ||
|---|---|---|---|---|---|
| L | M | h | |||
| TC-HC300S(L)/D型側溝 | □300 | □424 | □150 | □80A | □380 |
| TC-HC350S(L)/D型側溝 | □350 | □474 | □150 | □80A | □430 |
| TC-HC400S(L)/D型側溝 | □400 | □524 | □150 | □80A | □480 |
| TC-HC450S(L)/D型側溝 | □450 | □574 | □150 | □80A | □530 |
| TC-HC600S(L)/D型側溝 | □600 | □724 | □175 | □100A | □680 |

| 型式 | 寸法(mm) | 排水口径 | 蓋寸法(mm) | |||
|---|---|---|---|---|---|---|
| L | M | m | h | |||
| TC-HX300S(L)/D型側溝 | □300 | □424 | □500 | □150 | □80A | □380 |
| TC-HX350S(L)/D型側溝 | □350 | □474 | □550 | □150 | □80A | □430 |
| TC-HX400S(L)/D型側溝 | □400 | □524 | □600 | □150 | □80A | □480 |
| TC-HX450S(L)/D型側溝 | □450 | □574 | □650 | □150 | □80A | □530 |
| TC-HX600S(L)/D型側溝 | □600 | □724 | □800 | □175 | □100A | □680 |
各製品の仕様は現場に合わせて変更可能です。
側溝同様、清掃しやすく、衛生的な排水設備です。
各製品の仕様は現場に合わせて変更可能です。

設計・施工上の注意点
側溝の水上~水下の全長・排水量により水勾配・溝幅を検討してください。
機器排水等の流入がある場合は導入口(ソケット)を接続します。
母材はSUS304を標準としますが耐薬品性等が要求される場合は別途ご相談下さい。
納入時に側溝に溶着している幅決めプレートは、コンクリート養生期間中は外さないでください。
側溝とスラブの間などに隙間が発生しないようにバイブレーション等でコンクリートが回り込むようにしてください。
各製品の仕様は現場に合わせて変更可能です。
いつまでも強く、美しく、滑りにくいステンレス製です。
メインバーピッチ
30mm/22mm/15mm/13mm
強度区分
ノンスリップ形状:ローレット
部品構成
※受枠はSLタイプをご用命下さい。
※適用荷重の表示について、(例)T-2/T-6は横断溝/側溝用です。 ※歩行用は適用荷重T-2未満です。 ※T-20はグレードCです。
| 使用場所 | 適用荷重 | スパン | 衝撃係数 | 許容応力(N/mm2) | |
|---|---|---|---|---|---|
| 一般タイプ | |||||
| 横断溝 | T-20 | グレードB | みぞ幅 | 0.4 | 約180 |
| グレードC | |||||
| T-14 | |||||
| T-6 | |||||
| T-2 | |||||
| 側溝 | T-20 | 0 | 約180 | ||
| T-14 | |||||
| T-6 | |||||
| T-2 | |||||
| 集水桝 | T-20 | 0 | 約180 | ||
| T-14 | |||||
| T-6 | |||||
| T-2 | |||||
| U字溝 | T-14 | 0 | 約180 | ||
| T-6 | |||||
| T-2 | |||||
| 歩道 | 5kN/m2 | 0 | 約180 | ||
形式基準については、これまでの実験値および各種資料を参考にして以下のように設定しています。
強度区分
ご注文は下記要領でご指示ください。
☆標準品以外の寸法も製作可能です。
メインバーピッチ
30mm/22mm/15mm/13mm
強度区分
ノンスリップ形状:ローレット
部品構成
※受枠はSLタイプをご用命下さい。

製品の形状は正方形です。四方受枠をつける場合はご注文の際「枠付」とご指示ください。
〈例〉SMQW4420 P=15 枠付
ご注文は下記要領でご指示ください。
標準品以外の寸法も製作可能です。
ボルト固定式も製作可能です。
ステンレス製グレーチング
使用上の注意について
ステンレス製グレーチングは使用場所にご注意ください。車輌が頻繁に通行する場所やフォークリフトや牽引車など特殊車輌が通行する場所、車輌が転回する場所には適しません。
(T-20グレードB仕様を除く)
各製品の仕様は現場に合わせて変更可能です。

溝用
桝用


寸法表(溝用)
<単位:mm>
| 型式 | 溝幅 | 寸法 | 板厚 | P | 質量(kg) | 開口面積(mm2) |
|---|---|---|---|---|---|---|
| TC-HP150 | 150 | 200×499 | 3 | 45 | 2.8 | 5430 |
| TC-HP200 | 200 | 250×499 | 3 | 45 | 3.5 | 6788 |
| TC-HP250 | 250 | 300×499 | 3 | 45 | 4.2 | 8145 |
寸法表(桝用)
<単位:mm>
| 型式 | 寸法 | 板厚 | P | 質量(kg) | 開口面積(mm2) |
|---|---|---|---|---|---|
| TC-HP300 | 350×350 | 3 | 45 | 3.4 | 4630 |
| TC-HP350 | 400×400 | 3 | 45 | 4.5 | 6477 |
| TC-HP400 | 450×450 | 3 | 45 | 5.7 | 7247 |
| TC-HP450 | 500×500 | 3 | 45 | 6.9 | 9864 |
SL
SLタイプ寸法・質量表
| メインバーの高さ h |
製品符号 | 寸法(mm) | 質量 (kg/本) |
適合グレーチング | |
|---|---|---|---|---|---|
| H | 標準長さ | ||||
| 15 | SL-15 | 18 | 2000 | 2.3 | SMQ GK GA |
| 20 | SL-20 | 23 | 2.5 | ||
| 25 | SL-25 | 28 | 2.7 | ||
| 32 | SL-32 | 35 | 3.0 | ||
| 38 | SL-38 | 41 | 3.4 | ||
| 45 | SL-45 | 48 | 3.6 | ||
| 50 | SL-50 | 53 | 4.0 | ||
SL受枠断面

SL受枠の納まり

SF03B
SF03B断面

SF03B納まり

各製品の仕様は現場に合わせて変更可能です。